管道和设备工程(2022年) 1.某办公楼内卫生间的给水工程施工图,如图3-Ⅱ-9-1和图3-Ⅱ-9-2所示。     -考呗网题库移动版
案例分析
首页 题库首页在线模考
取消
简答题管道和设备工程(2022年)
1.某办公楼内卫生间的给水工程施工图,如图3-Ⅱ-9-1和图3-Ⅱ-9-2所示。
 
 
说明:
1.办公楼共7层,一层层高3.8m,二到七层层高3.6m,图中尺寸标注标高以“m”计,其他均以“mm”计。
2.管道采用PP-R塑料管及成品管件,热熔连接,成品管卡。
3.阀门采用螺纹球阀Q11F-16C,污水池上装铜质水嘴。
4.成套卫生器具安装按标准图集要求施工,所有附件均随卫生器具配套供应。洗脸盆为单柄单孔台上式安装,大便器为感应式冲洗阀蹲式大便器,小便器为感应式冲洗阀壁挂式安装,污水池为成品落地安装。
5.管道系统安装就位后,对给水管道进行水压试验和水冲洗。
图3-Ⅱ-9-2卫生间给水系统图
2.根据《通用安装工程工程量计算标准》GB/T50856—2024的规定,给水排水工程相关分部分项工程量清单项目的统一编码见表3-Ⅱ-9-1。
 
3.塑料给水管安装定额相关数据见表3-Ⅱ-9-2,表内费用均不包含增值税可抵扣进项税额。该工程的人工单价综合工日为100元/工日,管理费和利润分别占人工费的60%和30%。
 
4.经计算该办公楼管道安装工程的分部分项工程人材机费用合计为500000元,其中人工费占30%,管理费和利润分别占人工费的50%和25%。单价措施项目中仅有脚手架项目,脚手架搭拆的人材机费用24000元,其中人工费占25%;总价措施项目费中的安全生产措施费用根据当地工程造价管理机构发布的规定按分部分项工程人工费的20%计取,其他总价措施项目费用合计按分部分项工程人工费的15%计取,总价措施费中人工费占25%。
上述费用均不包含增值税可抵扣进项税额,增值税税率按9%计取。
问题:
1.按照图3-Ⅱ-9-1和图3-Ⅱ-9-2所示内容,按直埋(指敷设于室内地平面下埋地的管段)、明敷(指沿墙面架空敷设于室内明处的管段)分别列式计算给水管道安装项目分部分项清单工程量(注:管道工程量计算至支管与卫生器具相连的分支三通或末端弯头处止)。
2.根据《建设工程工程量清单计价标准》GB/T50500—2024、《通用安装工程工程量计算标准》GB/T50856—2024的规定,编制管道、阀门、卫生器具(污水池除外)安装项目的分部分项工程项目清单,填入表3-Ⅱ-9-3。
 
3.根据表3-Ⅱ-9-2给出的相关内容,列式计算dn40PP-R室内明敷塑料给水管道分部分项工程的综合单价。

参考答案暂无
解析:1.计算卫生间给水管道安装项目分部分项清单工程量:
(1)dn63PP-R塑料管直埋:3+0.15=3.15(m)
(2)dn50PP-R塑料管直埋:(2.20+2.90-0.15-0.15)+(0.80+0.80)=6.40(m)
dn50PP-R塑料管明敷:(14.6+1.3)+(11+0.4)=27.30(m)
(3)dn40PP-R塑料管明敷:3.60+3.60×2=10.80(m)
(4)dn32PP-R塑料管明敷:3.60+3.60=7.20(m)
JL1支管:[(1.50+4.50-0.15×2)+(0.70+0.90-0.15)+(1.30-0.8)]×7=53.55(m)
JL2支管:[(0.90×2+1.15)+(0.80-0.40)+(0.70+0.90×2)]×7=40.95(m)
合计:7.20+53.55+40.95=101.70(m)
(5)dn20PP-R塑料管明敷:[(1.3-1.0)+(2.20-0.15-0.30)+(0.90+0.50-0.15)]×7=23.10(m)
2.参见表3-Ⅱ-9-4。
 
3.dn40PP-R室内明敷塑料给水管道安装综合单价=[158.00+85.00+15.00+158.00×(60%+30%)+10.16×12.00+10.81×5.00]÷10+[345.00+110.00+25.00+345.00×(60%+30%)]÷100+[60.00+20.00+10.00+60.00×(60%+30%)]÷100=67.97(元/m)

你可能喜欢

简答题电气和自动化控制工程(2015年)
工程背景资料如下:
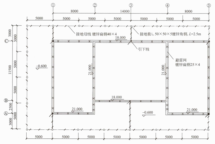
1.图3-Ⅲ-1-1所示为某标准厂房防雷接地平面图。
 
说明:1.室内外地平面高差0.60m,不考虑墙厚,也不考虑引下线与避雷网、引下线与断接卡子的连接耗量。
2.接闪带采用25×4镀锌扁钢,沿屋顶女儿墙敷设。
3.引下线利用建筑物柱内主筋引下,每一处引下线均需焊接2根主筋,每一引下线离地平面1.8m处设一断接卡子。
4.户外接地母线均采用40×4镀锌扁钢,埋深0.7m。
5.接地极采用L50×50×5镀锌角钢制作,L=2.5m。
6.接地电阻要求小于10Ω。
7.图中标高单位以“m”计,其余均为“mm”。
图3-Ⅲ-1-1标准厂房防雷接地平面图
2.防雷接地工程的相关定额见表3-Ⅲ-1-1。
 
3.该工程的管理费和利润分别按人工费的30%和10%计算,人工单价为95元/工日。
4.相关分部分项工程量清单项目统一编码见表3-Ⅲ-1-2。
 
问题:
1.按照背景资料1~4和图3-Ⅲ-1-1所示内容,根据现行国家标准《建设工程工程量清单计价标准》GB/T50500—2024和《通用安装工程工程量计算标准》GB/T50856—2024的规定,分别列式计算避雷网、避雷引下线(利用建筑物主筋作引下线不计附加长度)和接地母线的工程量,将计算式与结果填写在答题卡上,并在答题卡表3-Ⅲ-1-3中计算和编制各分部分项工程的综合单价与合价。
 
2.设定该工程“避雷引下线”项目的清单工程量为120m,其余条件均不变,根据背景材料的相关定额,计算“避雷引下线”的综合单价。(保留两位小数)

简答题电气和自动化控制工程(2017年)
工程背景资料如下:
1.图3-Ⅲ-3-1为某配电房电气平面图,图3-Ⅲ-3-2为配电箱系统图,表3-Ⅲ-3-1为设备材料表。该建筑物为单层平屋面砖、混凝土结构,建筑物室内净高为4.00m,图中括号内数字表示线路水平长度,配管进入地面或顶板内深度均按0.05m计算,穿管规格:BV2.5mm²导线穿3~5根,均采用刚性阻燃管PC20,其余按系统图。
 
 
2.该工程的相关定额、主材单价及损耗率见表3-Ⅲ-3-2。
 
 
 
3.该工程的人工费单价(综合普工、一般技工和高级技工)为100元/工日,管理费和利润分别按人工费的40%和20%计算。
4.相关分部分项工程量清单项目编码及项目名称见表3-Ⅲ-3-3。
 
问题:
1.按照背景资料1~4和图3-Ⅲ-3-1及图3-Ⅲ-3-2所示内容,根据现行国家标准《建设工程工程量清单计价标准》GB/T50500—2024和《通用安装工程工程量计算标准》GB/T50856—2024的规定,计算各分部分项工程量,并将配管(PC20、PC40)和配线(BV2.5mm²、BV16mm²)的工程量计算式与结果填写在指定位置,见表3-Ⅲ-3-4;计算各分部分项工程的综合单价与合价,编制完成表3-Ⅲ-3-5。(答题时不考虑总照明配电箱的进线管道和电缆,不考虑开关盒和灯头盒)
 
 
2.设定“该工程总照明配电箱AL”的清单工程量为1台,其余条件均不变,根据背景资料中的相关数据,列式计算配电箱AL综合单价。
(计算结果保留两位小数)

延伸阅读