土木建筑工程(2021年) 某企业已建成1500m³生活用高位水池,开始办理工程竣工结算事宜。承建该工程的施工企业根据施工招标工程量清单中标-考呗网题库移动版
案例分析
首页 题库首页在线模考
取消
简答题土木建筑工程(2021年)
某企业已建成1500m³生活用高位水池,开始办理工程竣工结算事宜。承建该工程的施工企业根据施工招标工程量清单中标的“高位水池土建分部分项工程项目清单计价表”(表3-I-7-1),以及该工程的竣工图及相关参数(图3-I-7-1、图3-I-7-2)编制工程结算。
 
 
 
 
 
问题:
1.根据图3-I-7-1和图3-I-7-2中所示内容及相关数据,按现行国家标准《构筑物工程工程量计算标准》GB/T50860—2024的计算规则,请在答题卡中,列式计算该高位水池的混凝土垫层、钢筋混凝土池底板、钢筋混凝土池壁板、钢筋混凝土池顶板、钢筋混凝土池内柱、钢筋、钢爬梯等实体工程分部分项结算工程量(注:池壁计算高度为池底板上表面至池顶板下表面;池顶板为肋形板,主、次梁计入池顶板体积内;池内柱的计算高度为池底板上表面到池顶板下表面的高度。钢筋工程量计算标准:池底板66.50kg/m³,池壁板89.65kg/m³,池顶板及主、次梁123.80kg/m³,池内柱148.20kg/m³,钢爬梯φ20钢筋2.47kg/m)。
2.原招标工程量清单中钢筋混凝土池顶板混凝土为C30,施工过程中经各方确认设计变更为C35。若该清单项目混凝土消耗量为1.015;同期C30及C35商品混凝土到工地价分别为488.00元/m³和530.00元/m³;原投标价中企业管理费按人工、材料、机械费之和的10%计取,利润按人工费、材料费、机械费、企业管理费之和的7%计取。请在答题卡中列式计算该钢筋混凝土池顶板混凝土由C30变更为C35的综合单价差和综合单价。
3.该工程施工合同双方约定,工程竣工结算时,土石方工程量和单价措施费不做调整。请根据问题1和问题2的计算结果、表3-I-7-1中已有的数据、答题卡表中相关的信息,按现行国家标准《构筑物工程工程量计算标准》GB/T50860—2024及《建设工程工程量清单计价标准》GB/T50500—2024的计算规则,在答题卡表3-I-7-2中,编制该高位水池土建分部分项工程项目清单计价表。
 
4.若总价措施项目中仅有安全生产措施费,其费率按分部分项工程费的6%计取;其他项目费用的防水工程专业分包结算价为87200.00元(含增值税7200.00元),总承包服务费按5%计取;增值税税率按9%计取。请根据问题3的计算结果,按《建设工程工程量清单计价标准》GB/T50500—2024的计算规则,在答题卡表3-I-7-3中,编制该高位水池土建单位工程竣工结算汇总表。
 
(无特殊说明的,费用计算时均为不含税价格;计算结果均保留两位小数)

参考答案暂无
解析:1.(1)高位水池的混凝土垫层
(20+0.75×2+0.1×2)×(15+0.75×2+0.1×2)×0.1=36.24(m³)
(2)钢筋混凝土池底板
(20+0.75×2)×(15+0.75×2)×0.6-2×2×0.3=211.65(m³)
(3)钢筋混凝土池壁板
(15+20)×2×5×0.5=175.00(m³)
(4)钢筋混凝土池顶板
①(20+0.25×2)×(15+0.25×2)×0.12-(2×2×0.12)×2=37.17(m³)
②KL1:[(20-0.5-0.4×3)×0.2×0.33]×2=2.42(m³)
③KL2:[(15-0.5-0.4×2)×0.2×0.33]×3=2.71(m³)
④L1:2×(5-0.25-0.1)×0.2×0.23=0.43(m³)
⑤L2:2×2×0.2×0.23=0.18(m³)
主梁合计:2.42+2.71=5.13m³
次梁合计:0.43+0.18=0.61m³
⑥综合:37.17+2.42+2.71+0.43+0.18=42.91(m³)
(5)钢筋混凝土池内柱
柱子:0.4×0.4×5×6=4.80(m³)
(6)钢筋
①底板钢筋211.65×66.50/1000=14.07(t)
②壁板钢筋175×89.65/1000=15.69(t)
③柱内钢筋4.8×148.20/1000=0.71(t)
④板及主次梁钢筋42.91×123.80/1000=5.31(t)
⑤合计:14.07+15.69+0.71+5.31=35.78(t)
(7)钢爬梯0.4×5×17×2×2.47/1000=0.17(t)
2.综合单价差=(530.00-488.00)×(1+10%)×(1+7%)×1.015=50.18(元/m³)
综合单价=719.69+50.18=769.87(元/m³)
3.参见表3-I-7-4。
 
4.安全生产措施费:935472.48×6%=56128.35(元);
总承包服务费:(87200.00-7200)×5%=4000.00(元);
增值税:(935472.48+56128.35+4000.00)×9%=89604.07(元)
计算结果参见表3-I-7-5。
 

你可能喜欢

简答题土木建筑工程(2022年)
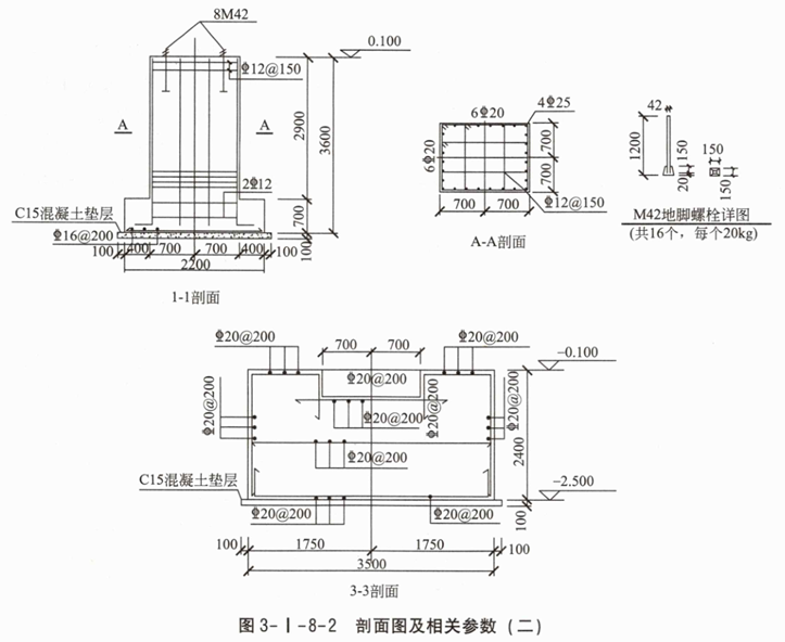
某旅游客运索道工程的上站设备基础平面图和相关参数如图3-I-8-1和图3-I-8-2所示。根据招标方以招标图确定的工程量清单,承包方中标的“上站设备基础土建分部分项工程和单价措施项目清单与计价表”如表3-I-8-1所示,现场搅拌混凝土配合比如表3-I-8-2所示,该工程施工合同双方约定,施工图设计完成后,对该实体工程的工程量按施工图重新计量调整,工程主要材料二次搬运费按现场实际情况及合理运输方案计算,土石方工程费用和单价措施费不做调整。
 
 
 
说明:
1.基础底部宜坐落在强风化花岗岩上。
2.基础考虑采用C30混凝土。钢筋采用HRB400(业)。地脚螺栓采用Q355B钢。
3.基础下设100mm厚C15混凝土垫层,各边宽出基础100mm。
4.基础应一次浇筑完毕,不留施工缝,施工完毕后应及时将肥槽回填至整平地面标高。
 
 
问题:
1.依据图3-I-8-1、图3-I-8-2和现行国家标准《房屋建筑与装饰工程工程量计算标准》GB/T50854—2024,完成表3-I-8-3的工程量计算。(独立基础钢筋含量为56.4kg/m³,设备基础钢筋含量为63.66kg/m³)
 
2.结合案例背景表和问题1计算结果,完成表3-I-8-4的编制。
 
3.材料二次搬运费单价如下:水泥210.00元/t,中粗砂160.00元/t,碎石160.00元/t,钢材800.00元/t。材料损耗率:混凝土损耗率1.5%,钢材损耗率3%。完成二次搬运费用汇总表(表3-I-8-5)。
 
4.模板工程费没有变化,安全生产措施费是分部分项工程费的6%,增值税税率为9%,完成索道上站设备基础土建单位工程施工图调整价汇总表。
(计算结果以“元”为单位,保留小数点后两位)

简答题土木建筑工程(2023年)
某城市双向5.60km长距离地下隧道工程采用盾构机掘进施工。
其中以地下连续墙为主体结构的工程施工图和相关参数见图3-I-9-1、图3-I-9-2。工程造价咨询公司编制的该地下连续墙分部分项工程项目清单编码及综合单价见表3-I-9-1。
 
 
 
问题:
1.根据图3-I-9-1所示内容和相关数据及已知信息,按《房屋建筑与装饰工程工程量计算标准》GB/T50854—2024的计算规则,在答题卡表3-I-9-2中列式计算该盾构施工钢筋混凝土地下连续墙、φ800水泥止水旋喷桩、钢筋混凝土连续墙顶压梁、地下连续墙钢筋笼制作安装及墙顶压梁钢筋制作绑扎等实体工程分部分项工程量。已知地下连续墙和墙顶压梁的钢筋含量分别为79.76kg/m³和106.54kg/m³。
 
2.根据问题1的计算结果和表3-I-9-1已知数据,按《房屋建筑与装饰工程工程量计算标准》GB/T50854—2024及《建设工程工程量清单计价标准》GB/T50500—2024的计算规则,在答题卡表3-I-9-3中编制地下连续墙土建实体分部分项工程项目清单计价表(已知相关墙顶压梁模板项目费为1470000.00元)。
 
3.安全生产措施费按分部分项工程费的3.6%,招标文件中列明基坑监测设施暂列金额250000.00元,基坑土方挖运专业工程暂估价8120000.00元(含税20000.00元),基坑降水工程暂估价1300000.00元(含税30000.00元),总承包服务费按专业工程暂估价4%计取,增值税销项税税率为9%,根据问题1、2的计算结果计算地下连续墙护坡工程招标控制价,并在答题卡表3-I-9-4中编制该盾构施工地下连续墙土建实体招标控制价汇总表。
 

简答题土木建筑工程(2024年)
某建筑面积28860.00m²的钢筋混凝土框架结构多层工业厂房,其厂房主体结构工程分部分项工程工程量清单及综合单价见表3-I-10-1。由于该厂房二层局部工艺和活荷载条件变化,为了增加该部位结构的抗震性能,单位出具涉及该部位结构的钢筋混凝土框架柱、梁、板使用的预拌混凝土中添加适量专用YKT钢纤维的设计变更,变更的具体内容和相关参数如图3-I-10-1和图3-I-10-2所示。钢纤维混凝土梁的消耗定额及指导价格信息见表3-I-10-2。
 
 
 
 
问题:
1.根据图3-I-10-1、图3-I-10-2所示内容和表3-I-10-1中的有关数据,按《房屋建筑与装饰工程工程量计算标准》GB/T50854—2024的计算规则,在答题卡表3-I-10-3中列式计算设计变更后的该厂房主体结构工程中添加钢纤维的钢筋混凝土框架柱、梁、板分部分项工程量,并调整原有钢筋混凝土框架柱、梁、板实体工程分部分项工程量。(注:计算与钢纤维混凝土梁共同浇筑的钢纤维混凝土框架柱长度同相交梁高度)
 
2.根据问题1的有关计算结果、表3-I-10-2给定的基础数据和下面的已知信息,按《建设工程工程量清单计价标准》GB/T50500—2024的计算规则,在答题卡表3-I-10-4中编制钢纤维混凝土梁综合单价分析表,已知企业管理费按人工费、材料费、机械费之和的10%计取,利润按人工费、材料费、机械费、企业管理费之和的7%计取。
 
3.根据问题1、问题2的计算结果,以及表3-I-10-1中已有的数据和下面的已知信息,按《建设工程工程量清单计价标准》GB/T50500—2024的计算规则,在答题卡表3-I-10-5中编制该厂房主体结构工程实体分部分项工程项目清单计价表,经计算C40钢纤维混凝土框架柱及钢纤维混凝土板的综合单价分别为1074.00元/m³和1060.00元/m³。
 
4.根据问题3的计算结果和下面的已知信息,按《建设工程工程量清单计价标准》GB/T50500—2024的计算规则,在答题卡表3-I-10-6中编制该厂房主体结构单位工程项目清单汇总表,已知措施项目费中安全生产措施费占分部分项工程费的4.5%,其他措施费为4386300.00元;其他项目费用为零;增值税税率按9%计取。
(注:无特殊说明的,费用计算时均为不含税价格;除综合单价分析表中“数量”保留三位小数外,其余结果保留两位小数)
(1)安全生产措施费:
(2)措施项目费:
 

延伸阅读