【案例六】电气和自动化控制工程   某工程背景资料如下: 1.工程背景资料如下:该建筑物为某医院辅助用房工程,砖、混凝土-考呗网题库移动版
案例分析
首页 题库首页在线模考
取消
简答题【案例六】电气和自动化控制工程
  某工程背景资料如下:
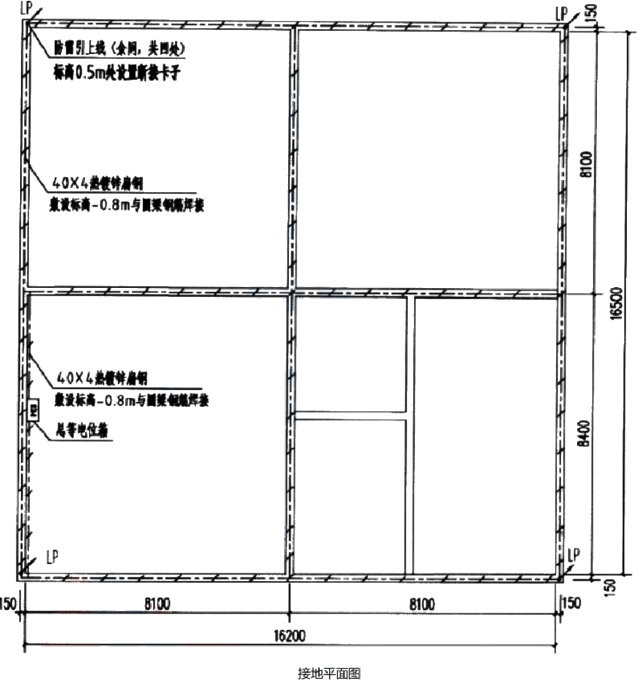
1.工程背景资料如下:该建筑物为某医院辅助用房工程,砖、混凝土结构,单层平屋面,建筑物层高4.9m。配电箱系统图及主要材料表、照明平面图、插座平面图、基础接地平面图、屋顶防雷平面图如下。图中括号内数字为线路水平长度,顶板厚度为100mm,配管嵌入地面或顶板深度按0.05m计算,配管配线规格为:BV2.5(NHBV2.5) 2~4根穿JDG20,5~6根穿JDG25,其余按系统图。








2.该工程的相关定额、主材单价及损耗率见下表:



3.该工程的管理费和利润分别按人工费的35%和25%计算。
4.相关分部分项工程量清单项目编码及项目名称如下。

5.答题时不考虑以下工程量。
(1) 配电箱的进线管及电缆;
(2) 开关盒、灯头盒和接线盒;
(3) 接地母线进入总等电位箱内的长度;
(4) 总等电位端子箱、防雷引下线、断接卡子、接地电阻测试。
【问题】
1.按照背景资料及图纸,根据《建设工程工程量清单计价规范》GB 50500-2013 和《通用安装工程工程量计算规范》GB 50856-2013的规定,计算N1~N3, S1~S2, K1~K2 配管配线、接地母线、避雷网的工程量,计算式与结果填写在答题卡上指定位置。
2.假定JDG20工程量为140.00m, JDG25工程量为40.00m, BV2.5工程量为190.00m, BV4工程量为160.00m。NHBV2.5工程量为400.00m,沿女儿墙敷设的避雷网清单工程量为80.00m,镀锌扁钢接地母线工程量为120.00m,其他工程量根据给定图纸计算,编制分部分项工程量清单,计算各分部分项工程的综合单价与合价,完成答题卡“分部分项工程和单价措施项相清单与计价表”。(计算过程和结果数据均保留2位小数)

参考答案暂无
解析:第一问:
1.配管
N1:JDG20中4线管:1.9+4.1×3+2.7+2.5+(4.9-0.1-1.6-0.6+0.05)+ (4.9-0.1-1.3+0.05)=25.60m
   JDG25中5线管: 2.70m
N2:JDG20中4线管: 10.10+4.1×2+2.7+3.4+2+(4.9-0.1-1.6-0.6+0.05) +(4.9-0.1-1.3+0.05)= 32.60m
   JDG25中5线管: 6.80m
N3:JDG20中4线管: 3.2+3.9+2+(4.9-0.1-1.6-0.6+0.05)+(4.9-0.1-1.3+0.05)=15.30m
   JDG25中5线管: 4.10m
K1: JDG25中5线管: 6.9+(1.6+0.05)+(0.05+0.3)=8.90m
K2: JDG25中5线管: 16.30+(1.6+0.05)+(0.05+0.3)=18.30m
S1: JDG20管中3线管: 4.2+4.4+9.3+4.4+5.4+9.5+(1.6+0.05)+(0.3+0.05)×11=42.70m
S2: JDG20管中3线管: 3.4+3.2+4.5+(1.6+0.05)+(0.05+0.3)×5=14.5m
合计:JDG20=25.60+ 32.60+ 15.30+42.70+14.50= 130.70m
JDG25五线管=2.70+ 6.80+4.10+ 8.90+18.30=40.80m
2.配线
NHBV4×2.5: [25.6+32.6+15.3+(0.5+0.6)×3]×4+(2.7+6.8+4.1)×5=375.20m
BV3×2.5: [42.7+14.5+(0.5+0.6)×2]×3=178.20m
BV5×4: [8.9+18.3+(0.5+0.6)×2+(0.3+0.3)×2]×5=153.00m
3.避雷网(16.5+0.15×2+16.2+0.15×2)×2×1.039=69.20m
4.接地母线 [(16.5+0.15×2)×3+(16.2+0.15×2)×3+(8.4+0.15)+(0.8+0.3)+ (0.8+0.5)×4]× 1.039=119.23m
第二问:



你可能喜欢

简答题某国有企业投资的建设项目,采用工程量清单方式招标,发承包双方签订了工程施工合同。合同约定工期320天,签约合同价8000万元(含税),管理费为人材机费之和的8%,利润为人材机费和管理费之和的3%。规费为人工费的20%,增值税率为9%,因市场价格波动、人工费和钢材变化部分据实调整。施工机械闲置费用按机械台班单价的60%计算(不计取管理费和利润)。
合同签订后,经监理工程师批准的施工进度计划如图3.1所示。承包人安排E工作与I工作使用同一台施工机械(按每天1台班计),机械台班单价为1000元/台班。各项工作均按最早时间安排。工程实施过程中发生如下事件:

事件1:该工程F工作招标工程量清单中空调机组共计12套,设备暂估价20万元/套,F工作开始前发包人经询价选择了某设备供应商,并按18万元/套认定价格,由承包人采购,合同价款按发包人认定价格调整。
事件2:因工程变更增加G工作,G工作是E工作的紧后工作,是I工作的紧前工作,工作时间为40天,经确认,该工作人材机费用分别为20万元、40万元、10万元。
事件3:由于功能调整需要,对施工图进行了修改,因修改后的施工图延迟移交承包人,导致H工作开始时间延误40天。经双方协商,对因延迟交付施工图导致的工期延误,发包人同意按签约合同价和合同工期分摊的每天管理费标准补偿承包人。
事件4:上述事件发生后,J工作施工期间发生市场价格波动,经发包人确认,钢材下跌200元/吨(合同钢材单价3600元/吨),J工作的钢材用量为30吨,人工费上调6%。合同价中J工作的人工费为30万元。
以上事件发生后,承包人均及时向发包人提出工期及费用索赔。除注明外,各事件中的费用项目价格均不含增值税。
问题1:针对事件一,请指出发包人处理该事件的做法不妥之处,并给出正确的做法。
问题2:针对事件二,请指出变更后的关键线路。承包人可以索赔工期是多少天?G工作的工程造价是多少万元?除G工作的工程造价外,由该事件导致的费用索赔工程款是多少万元?
问题3:针对事件三,承包人可以获得的工期索赔多少天?假设签约合同价中的规费为300万元,按签约合同价和合同工期分摊的每天管理费是多少万元?承包人可以获得补偿的管理费是多少万元?
问题4:针对事件四,钢材单价下跌和人工费上涨是否需要调整价款?请说明原因。
(费用计算部分以万元为单位,计算结果保留三位小数。)

简答题

某企业拟投资建设一项目,生产一种市场需求稳定的工业产品,开展项目融资前,财务分析的相关基础数据如下:

1.项目建设投资2200万元(含可抵扣进项税140万元),项目建设期1年,运营期8年,建设投资全部形成固定资产,固定资产使用年限8年,残值率10%,按直线法折旧。

2.项目投产当年需投入流动资金200万元,在项目的运营期末全部收回。

3.项目正常年份设计产能为5000件/年,年经营成本为1200万元(含可抵扣进项税80万元),单位可变成本为2150元(含可抵扣进项税150元)

4.产品不含税销售单价定为3500元/件时,该产品可按设计产能100%生产销售,若将产品不含税销售单价定为4000元/件时,该产品可按设计产能80%生产销售。

5.项目产品适用的增值税税率为13%,增值税附加按应纳增值税的12%计算,企业所得税税率为25%,行业普遍可接受的总投资收益率为15%。

【问题】

1.若企业产品不含税销售单价定为3500元/件,分别计算项目运营期第1年、第8年的应纳增值税与调整所得税,并编制拟建项目投资现金流量表1-1。

2.分别计算产品不含税销售单价定为3500元/件、4000元/件时,项目运营期内的年平均息税前利润,并分析说明项目总投资收益率更低的单价,该定价下项目总投资是否达到行业普遍可接受的总投资收益率。

3.计算项目在不利定价情况下的盈亏平衡点,若企业可接受的最低销量为设计产能的60%,判断该项目是否可行。

(以万元为单位,计算结果保留2位小数。)



延伸阅读