工程计量与计价实务
首页
题库首页
在线模考
取消
取消
hot
热门搜索
一级建造师块
热
消防工程师块
热
初级会计师
证券从业
电气工程师
银行招聘
教师资格块
热
基金从业
更多热门>>
简答题
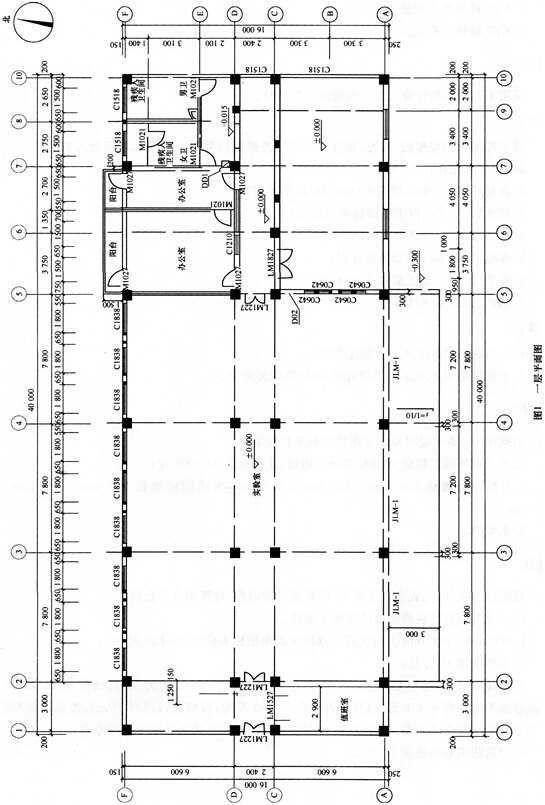
附图说明:
图1~图4为石家庄市区某工程(非房地产工程),开工时间2013年7月,框架结构,三类工程,包工包料,混凝土现场搅拌;内外墙体均为加气混凝土砌块墙,外墙厚250mm,内墙厚200mm,M10混合砂浆砌筑,外墙外侧粘贴聚苯保温板,保温隔热层外边线距外墙外边线60mm(阳台保温做法相同)。
根据图片回答题目!
根据图1~图4计算一层建筑面积。
参考答案
暂无
解析:
(16+0.06×2)×(40+0.06×2)+(1.5+0.06-0.06)×(3.75+4.05-0.2+0.06×2)/2=646.73+5.79=652.52m2
点击查看答案
进入在线模考
你可能喜欢
简答题
根据附图及已知条件采用工料单价法完成以下计算。
已知:
1.KZ1纵筋插至混凝土基础底部,基础底部标高为-2.550m;
2.纵筋底部弯钩长度12d,纵筋柱顶弯钩长度12d;
3.保护层厚度30mm;
4.钢筋连接方式采用对焊连接;
5.KZ1纵筋插入基础部分设三道箍筋;
6.不考虑钢筋理论重量与实际重量的偏差。
计算:
1.KZ1钢筋工程量。
2.KZ1混凝土工程量。
3.KZ1模板工程量。
点击查看答案
进入在线模考
简答题
采用工料单价法计算直接工程费及工程造价。
已知:
该工程屋面为坡屋面、两坡、角度30º、水平投影面积为712.74m2,屋面做法如下:
1.瓦材:水泥瓦;
2.卧瓦层:1:3水泥砂浆20mm厚(配钢筋网);
3.防水层:三元乙丙丁基橡胶卷材防水;
4.找平层:1:3水泥砂浆20mm厚;
5.保温层:50mm厚聚苯板保温;
6.找平层:1:3水泥砂浆20mm厚;
7.钢筋混凝土屋面板。
计算:
1.屋面做法中1、3、4、6直接工程费。
2.屋面做法中1、3、4、6工程造价,不计算措施项目。
点击查看答案
进入在线模考
简答题
根据图1~图4说明及以下条件编制工程量清单:
1.该工程外墙工程量为254.36m3,内墙:工程量为417.89m3;
2.外墙砌块规格600mm×250mm×200mm,内墙砌块规格600mm×200mm×200mm;
3.不勾缝。
点击查看答案
进入在线模考
延伸阅读